-
大阪メトロ四つ橋線『北加賀屋駅』の賃貸 詳細
この物件情報は【】に作成されたものです。




























| 所在階数 | − | 権利金 | − |
|---|---|---|---|
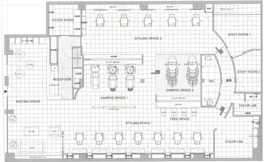
| カテゴリー | 美容室大型店舗 | ||
| 備考 | − | ||
| 所在地 | 大阪市住之江区 中加賀屋4 googleマップでみる |
|---|---|
| 交通 | 大阪メトロ四つ橋線 「北加賀屋駅」徒歩 6分 |
| 物件構造 | 鉄骨造 | 物件階層 | 3階建 |
|---|---|---|---|
| 物件種別 | 店舗 | 完成年月 | − |
| 物件設備 | トイレ/専用設備インターネット/光インターネット/CATV給湯室/専用什器設備 | ||
| 物件番号 | UT5-100513 |
|---|---|
| サイト名 | Shops STYLE |
似た物件を探したい、最新の物件情報を知りたい、希望の物件条件で見つけて欲しい、などお気軽にお問い合わせ下さい。