-
大阪メトロ御堂筋線『なんば駅』の賃貸 詳細
この物件情報は【】に作成されたものです。




























| 所在階数 | 4階 | 権利金 | − |
|---|---|---|---|
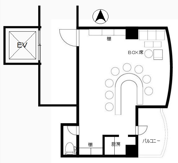
| カテゴリー | 軽飲食/レストラン・カフェバー・ラウンジ居抜き店舗 | ||
| 備考 | − | ||
| 所在地 | 大阪市中央区 東心斎橋2 googleマップでみる |
|---|---|
| 交通 | 大阪メトロ御堂筋線 「なんば駅」徒歩 10分 |
| 物件構造 | 鉄骨造 | 物件階層 | 11階建 |
|---|---|---|---|
| 物件種別 | 店舗 | 完成年月 | 1995年4月 |
| 物件設備 | トイレ/専用設備インターネット/ADSL給湯室/専用空調セキュリティ24時間利用可排気ダクトカウンターキッチン・厨房看板スペース冷蔵庫製氷機什器設備 | ||
| 物件番号 | UT5-105405 |
|---|---|
| サイト名 | Shops STYLE |
似た物件を探したい、最新の物件情報を知りたい、希望の物件条件で見つけて欲しい、などお気軽にお問い合わせ下さい。