-
大阪メトロ四つ橋線『四ツ橋駅』の賃貸 詳細
この物件情報は【】に作成されたものです。




























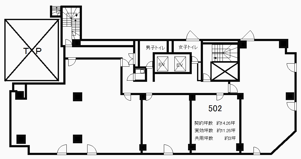
| 所在階数 | 5階 | 権利金 | − |
|---|---|---|---|
| カテゴリー | 美容室物販スケルトン美容系/エステ・ネイル/まつエク教室アパレル医療系/クリニック・歯科 | ||
| 備考 | − | ||
| 所在地 | 大阪市西区 北堀江1 googleマップでみる |
|---|---|
| 交通 | 大阪メトロ四つ橋線 「四ツ橋駅」徒歩 1分 |
| 物件構造 | SRC造 | 物件階層 | 10階建 |
|---|---|---|---|
| 物件種別 | 店舗 | 完成年月 | − |
| 物件設備 | トイレ/共同設備トイレ/男女別インターネット/光インターネット/ADSL給湯室/共同空調セキュリティ24時間利用可 | ||
| 物件番号 | UT5-105629 |
|---|---|
| サイト名 | Shops STYLE |
06-6657-7090
所在地:大阪府大阪市住之江区南加賀屋2-8-25セジュール24 1階
アクセス:大阪メトロ住之江公園駅4番出口新なにわ筋を渡ってスグ
似た物件を探したい、最新の物件情報を知りたい、希望の物件条件で見つけて欲しい、などお気軽にお問い合わせ下さい。