-
大阪メトロ四つ橋線『四ツ橋駅』の賃貸 詳細
この物件情報は【】に作成されたものです。




























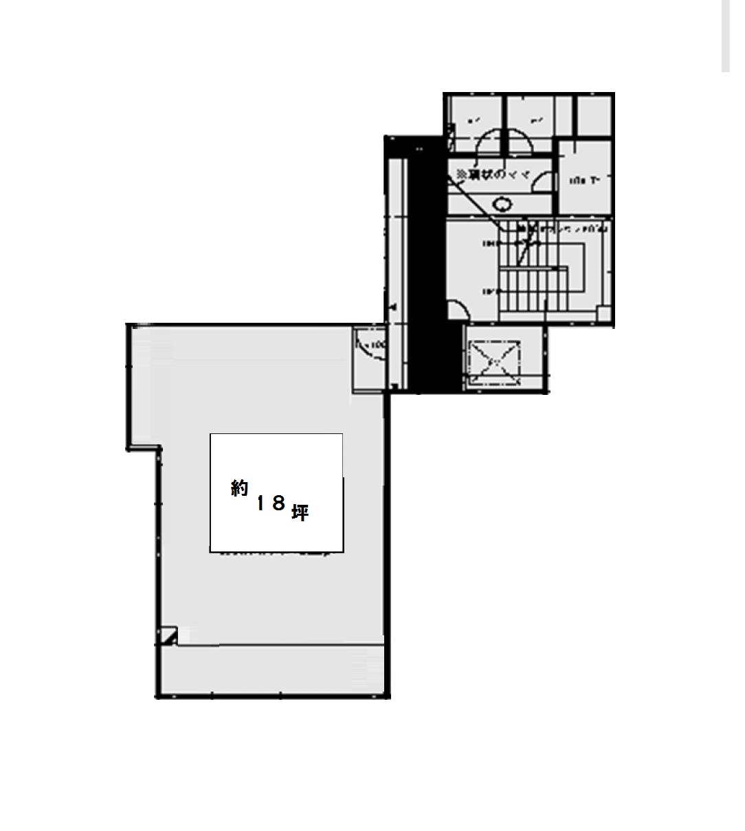
| 所在階数 | 3階 | 権利金 | − |
|---|---|---|---|
| カテゴリー | |||
| 備考 | − | ||
| 所在地 | 大阪市西区 北堀江1 googleマップでみる |
|---|---|
| 交通 | 大阪メトロ四つ橋線 「四ツ橋駅」徒歩 1分 |
| 物件構造 | 鉄骨造 | 物件階層 | 7階建 |
|---|---|---|---|
| 物件種別 | 店舗 | 完成年月 | 1973年9月 |
| 物件設備 | トイレ/共同設備トイレ/男女別インターネット/光給湯室/共同セキュリティ24時間利用可 | ||
| 物件番号 | UT5-105974 |
|---|---|
| サイト名 | Shops STYLE |
似た物件を探したい、最新の物件情報を知りたい、希望の物件条件で見つけて欲しい、などお気軽にお問い合わせ下さい。