-
大阪メトロ谷町線『都島駅』の賃貸 詳細
この物件情報は【】に作成されたものです。




























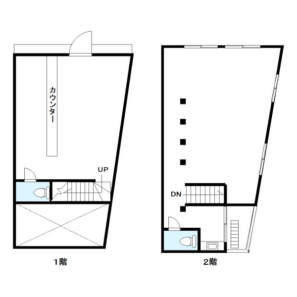
| 所在階数 | 1階 | 権利金 | − |
|---|---|---|---|
| カテゴリー | 軽飲食/レストラン・カフェ重飲食/焼肉・中華バー・ラウンジ物販居抜き店舗 | ||
| 備考 | − | ||
| 所在地 | 大阪市都島区 都島本通2 googleマップでみる |
|---|---|
| 交通 | 大阪メトロ谷町線 「都島駅」徒歩 4分 |
| 物件構造 | 木造 | 物件階層 | 2階建 |
|---|---|---|---|
| 物件種別 | 店舗 | 完成年月 | − |
| 物件設備 | トイレ/専用設備インターネット/光空調セキュリティ1フロア一戸24時間利用可排気ダクトカウンターキッチン・厨房権利付き看板スペース | ||
| 物件番号 | UT5-106088 |
|---|---|
| サイト名 | Shops STYLE |
似た物件を探したい、最新の物件情報を知りたい、希望の物件条件で見つけて欲しい、などお気軽にお問い合わせ下さい。