-
大阪メトロ四つ橋線『本町駅』の賃貸 詳細
この物件情報は【】に作成されたものです。




























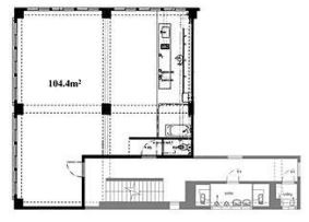
| 所在階数 | 3階 | 権利金 | − |
|---|---|---|---|
| カテゴリー | 美容系/エステ・ネイル/まつエク教室アパレル | ||
| 備考 | − | ||
| 所在地 | 大阪市西区 靱本町2 googleマップでみる |
|---|---|
| 交通 | 大阪メトロ四つ橋線 「本町駅」徒歩 7分 |
| 物件構造 | RC造 | 物件階層 | 4階建 |
|---|---|---|---|
| 物件種別 | 店舗 | 完成年月 | − |
| 物件設備 | トイレ/専用設備インターネット/光給湯室/専用空調セキュリティキッチン・厨房 | ||
| 物件番号 | UT5-108430 |
|---|---|
| サイト名 | Shops STYLE |
似た物件を探したい、最新の物件情報を知りたい、希望の物件条件で見つけて欲しい、などお気軽にお問い合わせ下さい。