-
大阪メトロ堺筋線『堺筋本町駅』の賃貸 詳細
この物件情報は【】に作成されたものです。




























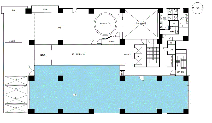
| 所在階数 | 1階 | 権利金 | − |
|---|---|---|---|
| カテゴリー | 軽飲食/レストラン・カフェ美容室バー・ラウンジ美容系/エステ・ネイル/まつエク教室大型店舗超一等地 | ||
| 備考 | − | ||
| 所在地 | 大阪市中央区 博労町1 googleマップでみる |
|---|---|
| 交通 | 大阪メトロ堺筋線 「堺筋本町駅」徒歩 2分 |
| 物件構造 | RC造 | 物件階層 | 8階建 |
|---|---|---|---|
| 物件種別 | 店舗 | 完成年月 | − |
| 物件設備 | 空調セキュリティ1フロア一戸看板スペース | ||
| 物件番号 | UT5-109054 |
|---|---|
| サイト名 | Shops STYLE |
似た物件を探したい、最新の物件情報を知りたい、希望の物件条件で見つけて欲しい、などお気軽にお問い合わせ下さい。