-
大阪メトロ御堂筋線『心斎橋駅』の賃貸 詳細
この物件情報は【】に作成されたものです。




























| 所在階数 | 1階 | 権利金 | − |
|---|---|---|---|
| カテゴリー | 軽飲食/レストラン・カフェ重飲食/焼肉・中華美容室バー・ラウンジ物販居抜き店舗スケルトンアパレル大型店舗超一等地一棟貸し | ||
| 備考 | − | ||
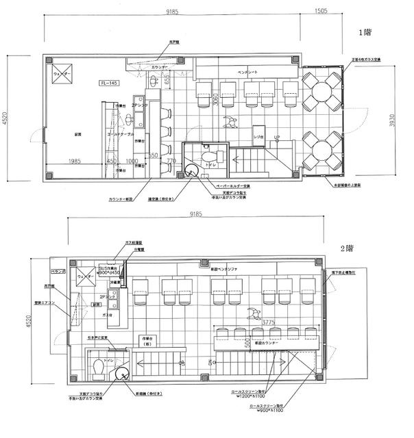
| 所在地 | 大阪市中央区 博労町3 googleマップでみる |
|---|---|
| 交通 | 大阪メトロ御堂筋線 「心斎橋駅」徒歩 4分 |
| 物件構造 | 鉄骨ALC | 物件階層 | 4階建 |
|---|---|---|---|
| 物件種別 | 店舗付住宅 | 完成年月 | − |
| 物件設備 | トイレ/専用設備インターネット/光空調排気ダクトカウンターキッチン・厨房権利付き看板スペース冷蔵庫製氷機什器設備 | ||
| 物件番号 | UT5-111019 |
|---|---|
| サイト名 | Shops STYLE |
似た物件を探したい、最新の物件情報を知りたい、希望の物件条件で見つけて欲しい、などお気軽にお問い合わせ下さい。