-
JR東西線『北新地駅』の賃貸 詳細
この物件情報は【】に作成されたものです。




























| 所在階数 | 3階 | 権利金 | − |
|---|---|---|---|
| カテゴリー | バー・ラウンジ居抜き店舗超一等地 | ||
| 備考 | − | ||
| 所在地 | 大阪市北区 曽根崎新地1 googleマップでみる |
|---|---|
| 交通 | JR東西線 「北新地駅」徒歩 3分 |
| 物件構造 | SRC造 | 物件階層 | 5階建 |
|---|---|---|---|
| 物件種別 | 店舗 | 完成年月 | 1991年11月 |
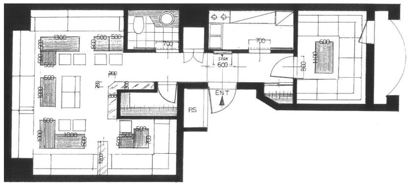
| 物件設備 | トイレ/専用設備インターネット/光空調24時間利用可キッチン・厨房看板スペース冷蔵庫製氷機什器設備 | ||
| 物件番号 | UT5-112046 |
|---|---|
| サイト名 | Shops STYLE |
似た物件を探したい、最新の物件情報を知りたい、希望の物件条件で見つけて欲しい、などお気軽にお問い合わせ下さい。