-
JRÅìÀ¾Àþ¡Ø¿·Ê¡Åç±Ø¡Ù¤ÎÄÂÂß ¾ÜºÙ
¤³¤Îʪ·ï¾ðÊó¤Ï¡Ú¡Û¤ËºîÀ®¤µ¤ì¤¿¤â¤Î¤Ç¤¹¡£




























| ½êºß³¬¿ô | 1³¬ | ¸¢Íø¶â | ¡Ý |
|---|---|---|---|
| ¥«¥Æ¥´¥ê¡¼ | ·Ú°û¿©¡¿¥ì¥¹¥È¥é¥ó¡¦¥«¥Õ¥§½Å°û¿©¡¿¾ÆÆù¡¦Ãæ²ÚÈþÍÆ¼¼ÊªÈÎ¥¹¥±¥ë¥È¥ó¶µ¼¼¥¢¥Ñ¥ì¥ë | ||
| È÷¹Í | ¡Ý | ||
| ½êºßÃÏ | Âçºå»ÔÊ¡Åç¶è Ê¡Åç3 google¥Þ¥Ã¥×¤Ç¤ß¤ë |
|---|---|
| ¸òÄÌ | JRÅìÀ¾Àþ ¡Ö¿·Ê¡Åç±Ø¡×ÅÌÊâ |
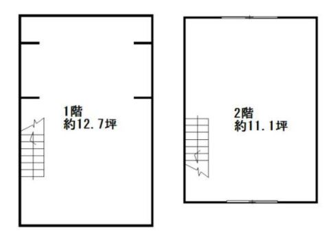
| ʪ·ï¹½Â¤ | ÌÚ¤ | ʪ·ï³¬ÁØ | 2³¬·ú |
|---|---|---|---|
| ʪ·ï¼ïÊÌ | ŹÊÞ | ´°À®Ç¯·î | ¡Ý |
| ʪ·ïÀßÈ÷ | £±¥Õ¥í¥¢°ì¸Í´ÇÈÄ¥¹¥Ú¡¼¥¹ | ||
| ʪ·ïÈÖ¹æ | UT5-115235 |
|---|---|
| ¥µ¥¤¥È̾ | Shops STYLE |
06-6459-4555
½êºßÃÏ¡§Âçºå»ÔÀ¾¶èµþÄ®ËÙ1-10-21
¥¢¥¯¥»¥¹¡§Ãϲ¼Å´»Í¥Ä¶¶Àþ Èî¸å¶¶±Ø7Èֽиý¤è¤êÆîÀ¾¤ØÅÌÊâ3ʬ
»÷¤¿Êª·ï¤òõ¤·¤¿¤¤¡¢ºÇ¿·¤Îʪ·ï¾ðÊó¤òÃΤꤿ¤¤¡¢´õ˾¤Îʪ·ï¾ò·ï¤Ç¸«¤Ä¤±¤ÆÍߤ·¤¤¡¢¤Ê¤É¤ªµ¤·Ú¤Ë¤ªÌ䤤¹ç¤ï¤»²¼¤µ¤¤¡£