-
大阪メトロ谷町線『南森町駅』の賃貸 詳細
この物件情報は【】に作成されたものです。




























| 所在階数 | 1階 | 権利金 | − |
|---|---|---|---|
| カテゴリー | 軽飲食/レストラン・カフェ物販スケルトン美容系/エステ・ネイル/まつエクアパレル | ||
| 備考 | − | ||
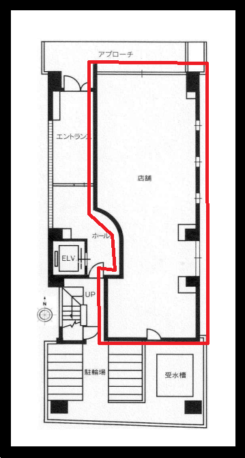
| 所在地 | 大阪市北区 天満2 googleマップでみる |
|---|---|
| 交通 | 大阪メトロ谷町線 「南森町駅」徒歩 7分 |
| 物件構造 | RC造 | 物件階層 | 9階建 |
|---|---|---|---|
| 物件種別 | 店舗 | 完成年月 | − |
| 物件設備 | 1フロア一戸看板スペース | ||
| 物件番号 | UT5-116279 |
|---|---|
| サイト名 | Shops STYLE |
似た物件を探したい、最新の物件情報を知りたい、希望の物件条件で見つけて欲しい、などお気軽にお問い合わせ下さい。