-
Âçºå¥á¥È¥íÃæ±ûÀþ¡Ø°¤ÇȺ±ء٤ÎÄÂÂß ¾ÜºÙ
¤³¤Îʪ·ï¾ðÊó¤Ï¡Ú¡Û¤ËºîÀ®¤µ¤ì¤¿¤â¤Î¤Ç¤¹¡£




























| ½êºß³¬¿ô | ¡Ý | ¸¢Íø¶â | ¡Ý |
|---|---|---|---|
| ¥«¥Æ¥´¥ê¡¼ | ·Ú°û¿©¡¿¥ì¥¹¥È¥é¥ó¡¦¥«¥Õ¥§¥Ð¡¼¡¦¥é¥¦¥ó¥¸¥¹¥±¥ë¥È¥óÈþÍÆ·Ï¡¿¥¨¥¹¥Æ¡¦¥Í¥¤¥ë¡¿¤Þ¤Ä¥¨¥¯¶µ¼¼¥¢¥Ñ¥ì¥ë°åÎÅ·Ï¡¿¥¯¥ê¥Ë¥Ã¥¯¡¦»õ²Ê | ||
| È÷¹Í | ¡Ý | ||
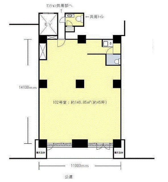
| ½êºßÃÏ | Âçºå»ÔÀ¾¶è ¹¾¸ÍËÙ3 google¥Þ¥Ã¥×¤Ç¤ß¤ë |
|---|---|
| ¸òÄÌ | Âçºå¥á¥È¥íÃæ±ûÀþ ¡Ö°¤ÇȺ±ء×ÅÌÊâ 3ʬ |
| ʪ·ï¹½Â¤ | SRC¤ | ʪ·ï³¬ÁØ | 13³¬·ú |
|---|---|---|---|
| ʪ·ï¼ïÊÌ | ŹÊÞ | ´°À®Ç¯·î | 1991ǯ1·î |
| ʪ·ïÀßÈ÷ | ¥È¥¤¥ì/ÀìÍÑÀßÈ÷¶õÄ´£±¥Õ¥í¥¢°ì¸Í | ||
| ʪ·ïÈÖ¹æ | UT5-116367 |
|---|---|
| ¥µ¥¤¥È̾ | Shops STYLE |
06-6459-4555
½êºßÃÏ¡§Âçºå»ÔÀ¾¶èµþÄ®ËÙ1-10-21
¥¢¥¯¥»¥¹¡§Ãϲ¼Å´»Í¥Ä¶¶Àþ Èî¸å¶¶±Ø7Èֽиý¤è¤êÆîÀ¾¤ØÅÌÊâ3ʬ
06-6657-7090
½êºßÃÏ¡§ÂçºåÉÜÂçºå»Ô½»Ç·¹¾¶èÆî²Ã²ì²°2-8-25¥»¥¸¥å¡¼¥ë24 1³¬
¥¢¥¯¥»¥¹¡§Âçºå¥á¥È¥í½»Ç·¹¾¸ø±à±Ø4Èֽиý¿·¤Ê¤Ë¤ï¶Ú¤òÅϤäƥ¹¥°
»÷¤¿Êª·ï¤òõ¤·¤¿¤¤¡¢ºÇ¿·¤Îʪ·ï¾ðÊó¤òÃΤꤿ¤¤¡¢´õ˾¤Îʪ·ï¾ò·ï¤Ç¸«¤Ä¤±¤ÆÍߤ·¤¤¡¢¤Ê¤É¤ªµ¤·Ú¤Ë¤ªÌ䤤¹ç¤ï¤»²¼¤µ¤¤¡£