-
大阪メトロ御堂筋線『心斎橋駅』の賃貸 詳細
この物件情報は【】に作成されたものです。




























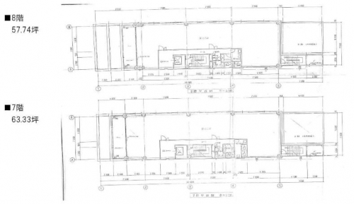
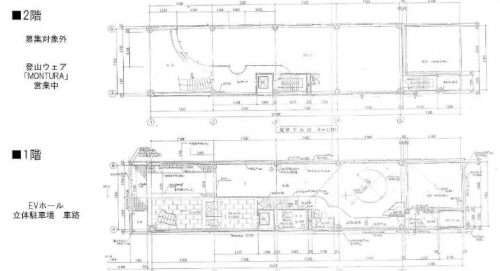
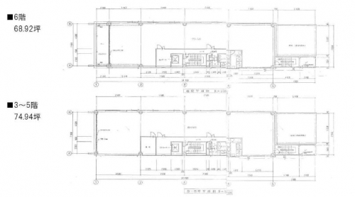
| 所在階数 | 3階 | 権利金 | − |
|---|---|---|---|
| カテゴリー | 大型店舗超一等地一棟貸し | ||
| 備考 | − | ||
| 所在地 | 大阪市中央区 南船場3 googleマップでみる |
|---|---|
| 交通 | 大阪メトロ御堂筋線 「心斎橋駅」徒歩 5分 |
| 物件構造 | RC造 | 物件階層 | 9階建 |
|---|---|---|---|
| 物件種別 | 店舗 | 完成年月 | − |
| 物件設備 | トイレ/専用設備トイレ/共同設備トイレ/男女別インターネット/光給湯室/専用給湯室/共同空調セキュリティ1フロア一戸24時間利用可看板スペース | ||
| 物件番号 | UT5-116772 |
|---|---|
| サイト名 | Shops STYLE |
似た物件を探したい、最新の物件情報を知りたい、希望の物件条件で見つけて欲しい、などお気軽にお問い合わせ下さい。