-
南海本線『住吉大社駅』の賃貸 詳細
この物件情報は【】に作成されたものです。




























| 所在階数 | 1階 | 権利金 | − |
|---|---|---|---|
| カテゴリー | 軽飲食/レストラン・カフェ重飲食/焼肉・中華美容室バー・ラウンジ物販居抜き店舗美容系/エステ・ネイル/まつエク商店街 | ||
| 備考 | − | ||
| 所在地 | 大阪市住之江区 粉浜3 googleマップでみる |
|---|---|
| 交通 | 南海本線 「住吉大社駅」徒歩 3分 |
| 物件構造 | 木造 | 物件階層 | 2階建 |
|---|---|---|---|
| 物件種別 | 店舗付住宅 | 完成年月 | 1958年10月 |
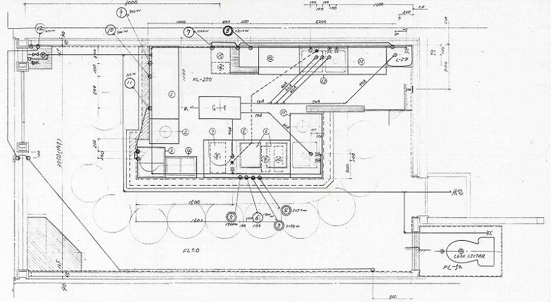
| 物件設備 | トイレ/専用設備空調排気ダクトカウンターキッチン・厨房冷蔵庫製氷機什器設備 | ||
| 物件番号 | UT5-89030 |
|---|---|
| サイト名 | Shops STYLE |
似た物件を探したい、最新の物件情報を知りたい、希望の物件条件で見つけて欲しい、などお気軽にお問い合わせ下さい。