-
大阪メトロ谷町線『南森町駅』の賃貸 詳細
この物件情報は【】に作成されたものです。




























| 所在階数 | 1階 | 権利金 | 500000 |
|---|---|---|---|
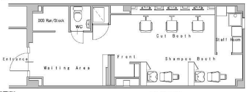
| カテゴリー | 美容室 | ||
| 備考 | − | ||
| 所在地 | 大阪市北区 天神橋1 googleマップでみる |
|---|---|
| 交通 | 大阪メトロ谷町線 「南森町駅」徒歩 5分 |
| 物件構造 | 鉄骨造 | 物件階層 | 5階建 |
|---|---|---|---|
| 物件種別 | 店舗 | 完成年月 | 1990年3月 |
| 物件設備 | トイレ/専用設備看板スペース | ||
| 物件番号 | UT5-95858 |
|---|---|
| サイト名 | Shops STYLE |
似た物件を探したい、最新の物件情報を知りたい、希望の物件条件で見つけて欲しい、などお気軽にお問い合わせ下さい。